Ground-Floor One-Bedroom Apartment 300 m from the Beach – Sarafovo, Burgas

 Сарафово

SOLD

2 rooms, 1 bedroom 1 balcony, 1 bathroom
build 2025
unfurnished
0 from 4
300 m
Information about the property
  • ID:37785
  • City: Burgas
  • Build:2025
  • Furnishing:Unfurnished
  • Distance to sea:300 m
  • View:City
  • Season:Year-round access
  • Floor:0 from 4
  • Construction:Brick
  • Heating:Electricity
  • Security:No
  • Elevator:Yes
Information

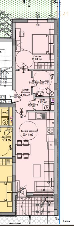
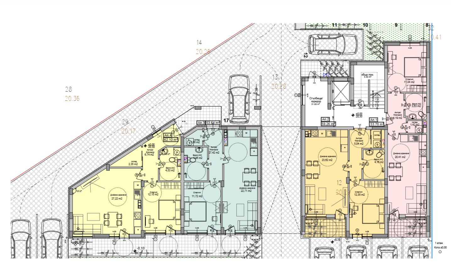
We present for sale a bright and functional one-bedroom apartment with a total area of 63.96 m², located on the ground floor of a new residential building with no maintenance fee. The property is situated in the prestigious Sarafovo district, in a quiet yet well-connected area, and comes with a convenient parking space – a valuable advantage for the neighborhood. The apartment features an excellent layout: spacious living room with space for a kitchenette and dining area, one separate bedroom, bathroom with WC, and a balcony/terrace. The ground-floor position provides easy and comfortable access, ideal for families with children, pets, or people with reduced mobility. The building has an elevator, modern architecture, and high-quality materials that ensure durability and comfort, with zero maintenance costs.

The location is excellent – only 300 meters from the beach and close to the “Atlantis” complex, giving you quick access to restaurants, sports, and recreational facilities. The area has brand-new infrastructure: newly paved streets, street lighting, and a well-maintained park with a children’s playground just 150 meters away. Sarafovo center is only 3–4 minutes on foot, the bus stop is at the same distance, and a supermarket can be found just 2 minutes from the entrance.

The property is a perfect choice for year-round living as well as for investment with high rental potential – both seasonal and long-term. The combination of strategic location, new construction with no maintenance fee, parking space, and convenient ground-floor position makes it a real gem on the Sarafovo market. Contact us for more information and to arrange a viewing. This apartment could be your new home by the sea or a secure investment in one of the most sought-after areas of Burgas.

Location