Exclusive duplex apartment with 2 bedrooms and a panoramic terrace in a new building in Slaveykov residential area – space, luxury, and prestige in Burgas
Славейков, Ona Homes377 160 €
314м21200 €/м2
unfurnished
- ID:38849
- City: Burgas
- Complex:Ona Homes
- Build:2029
- Furnishing:Unfurnished
- Distance to sea:3 km
- View:City
- Season:Year-round access
- Floor:8 from 9
- Construction:Brick
- Heating:Electricity
- Security:No
- Elevator:Yes
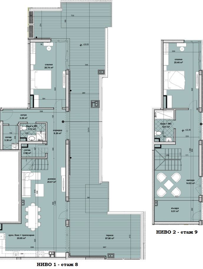
We present to you an exceptional duplex apartment with 2 bedrooms, located on the eighth and ninth floors of a new modern residential building in Slaveykov residential area. The property impresses with an impressive area of 314.30 m², combining spaciousness, functionality, and a sense of high-end urban living.
The first level of the duplex includes an entrance hall, a bedroom, a bathroom with toilet, a storage room, and a spacious living room with a kitchen area, from which there is access to an internal staircase leading to the second level. At this level there is also an impressive terrace with an area of 97.90 m², offering exceptional space for relaxation, entertainment, and panoramic views. The duplex has an eastern exposure.
The second level is designed as a more private living zone and includes an open gallery space, a second bedroom, and a bathroom with toilet. This architectural concept creates a clear separation between the day and night areas, ensuring maximum comfort and functionality.
The apartment is offered in a shell-and-core condition (on plaster and screed), allowing for individual interior design according to the personal style and preferences of the future owner.
The building is designed with a modern vision and consists of nine above-ground floors. The ground floor is dedicated to commercial units, while the residential floors include one-bedroom, two-bedroom apartments, and exclusive duplex apartments on the eighth and ninth floors. Garages and parking spaces are also provided on underground levels – level minus one and level minus two.
The location is highly convenient and preferred – nearby are major retail chains such as Kaufland, Lidl, and Billa, as well as Mall Galleria Burgas. The area offers schools, kindergartens, a polyclinic, and numerous services ensuring a complete and modern lifestyle.
Construction is planned to begin in June 2026, with a completion period of 36 months, making this project an excellent investment opportunity in a high-end property with long-term value. This duplex is a truly rare offering – combining space, architectural freedom, and a prestigious location in one of the fastest-developing areas of Burgas.
No maintenance fee.